案例风格
案例户型
案例面积
楼盘名称
所在城市
设计师
在设计上强调功能性,结构和形式的完整,更追求材料、技术、空间的表现深度与精确,运用最少的设计语言,表达出最深的设计内涵。删繁就简,去伪存真,以色彩的高度凝练和造型的极度简洁,在满足功能需要的前提下,卫生间做了一个简单的干湿分离,整体颜色以浅色为主,主卧在灰色调的空间基础,布置上灰色布艺床铺,摆上显眼活泼的当下流行的爱马仕橙色作为装饰,床头墙做了一个简单的硬包处理,让简约的空间也显得跳跃自然。
客厅
现在家庭的简约不只是说装修,还反映在家居配饰上的简约,比如不大的屋子,就没有必要为了显得“阔绰”而购置体积较大的物品,相反应该就生活所必需的东西才买,而且以不占面积、折叠、多功能等为主。

卧室
自古到今,卧室的功能从未有太多的变化,它一直是睡眠、休息、存放衣物的主要场所,是居室中最个人化的空间。每一间精心布置的卧室就是一首动人优美的旋律,值得回味。 然而,卧室的设计并非一定由多姿多彩的色调和层出不穷的造型来营造气氛。大方简洁、清逸淡雅而又极富现代感的简约主义已经越来越受到人们的欣赏和喜爱了。

卫生间
卫生间设计应该以实用大方、安全方便、易于清洁、美观简洁为主,卫生间会长期和水打交道,因此内部装修应该做好防水措施,浴室的墙壁和地面应该选择防水防潮耐腐蚀的优质材料,地板款式也尽量以简洁大规格防滑的瓷砖为主,整体应该给人一种明亮简洁的感觉,避免过度的繁琐设计,给人一种累赘感。

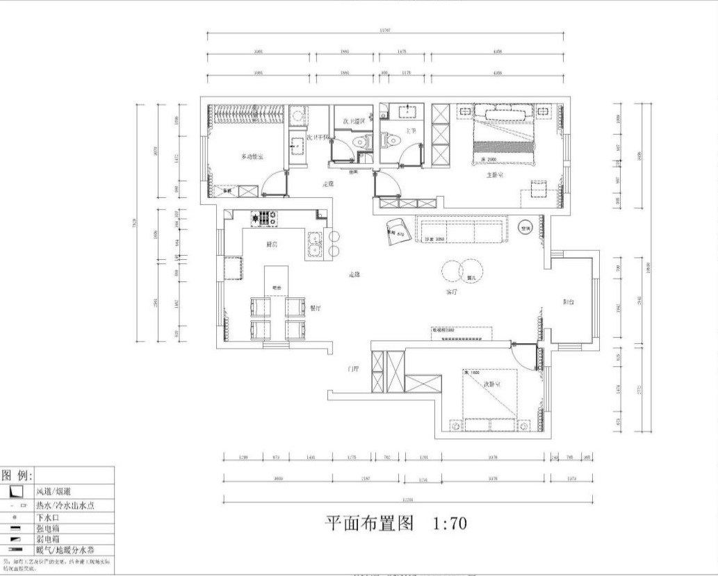
户型分析

上一篇:李雪:恒大御景湾 138㎡ 简欧