案例风格
案例户型
案例面积
楼盘名称
所在城市
设计师
简约风格,一家五口人,充分利用每个卧室的空间,满足孩子的学习空间,大人的工作空间,同时又增加足够的收纳。
设计缘起:客户想要两个房间分别作为儿子女的的独立空间,设置独立学习的空间。
结构改造:合理的利用的原结构,扩大餐厅空间,由原来的狭小拥挤,变得方正大气,开阔明亮。
空间色调:大面积的原木色作为空间的主色调,体现出空间的温馨而含蓄,又增加米白色的设计与现代造型及饰品结合成就自然清新的居住空间。
功能亮点:满足使用的前提下增加学习空间,让大人和孩子学习工作互不干扰,为便捷的生活方式再加重一笔,设计的步入衣帽间,在解决收纳问题的同时,提升的整个空间的利用。
客厅
整体原木风搭配,家里感觉清新又自然,再这样的家里生活,整个人都变得年轻了起来。客厅注重收纳,书香门第,储书第一。整墙的收纳柜可以放足够多的书在家里,徜徉在知识的海洋里。


卧室
整墙衣柜和书柜作为姑娘的收纳空间和学习空间,单独的属于小女儿的世界,关上门都是书本的香味,浓郁的学习氛围让人更加容易全身心的投入。

次卧
男儿当自强,阴面的卧室属于男孩子的房间,硬朗的线条结构。飘窗样式的书桌,在没有书桌的空间造一个出来。衣柜书柜书桌,原木色的板材协调统一,延伸的床头柜节省大量空间。

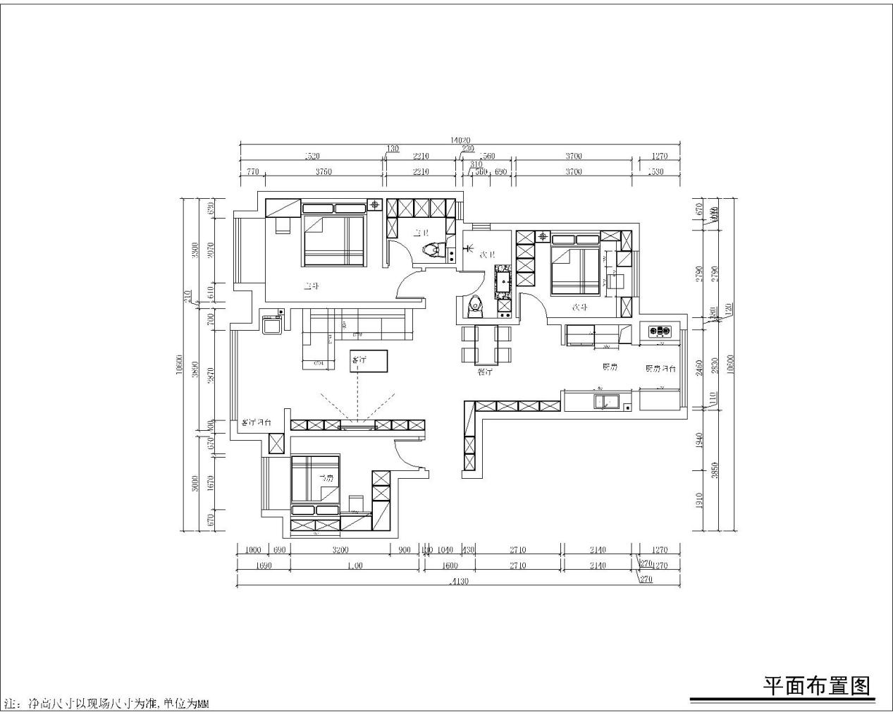
户型分析

下一篇:李刚:万科145㎡ 现代简约