案例风格
案例户型
案例面积
楼盘名称
所在城市
设计师
简约风格,利用客厅超大空间,实现客餐厅的跨越,整个空间完美的实现了统一。
设计缘起:客户想要营造出简洁,时尚充满激情的生活氛围。
结构改造:合理的利用的原结构,客餐厅整体化双层石膏板侧贴塑造出空间的延展性,整体与大气,根据业主的实际需求对空间进行从新的划分与布局。
空间色调:大面积的浅色作为空间的主色调,体现出空间的温馨而含蓄,与现代造型及饰品结合成就优雅,温馨的居住空间。
功能亮点:采用吧台加柜子的组合背景设计,在不失功能的前提下,为便捷的生活方式再加重一笔,贯穿的步入式茶吧台,在解决收纳问题的同时,提升的整个空间的气场。
客厅
公共区域用整墙柜子增加储物空间,鞋柜延伸到餐边柜,客厅延伸到餐厅。水吧台完美分割区域,双层石膏板又把空间连贯起来,独立而又统一。

卧室
卧室床头用漆调色。简约大方,不失美感。转角衣柜合理利用空间,大大增加了卧室衣物的收纳。配以简约的梳妆台,可以美美的化个妆。

厨房
有人说爱一个人应该抓住他的胃。改造后的厨房极大的增加了操作空间,柴油盐酱醋茶的味道正是生活的味道。

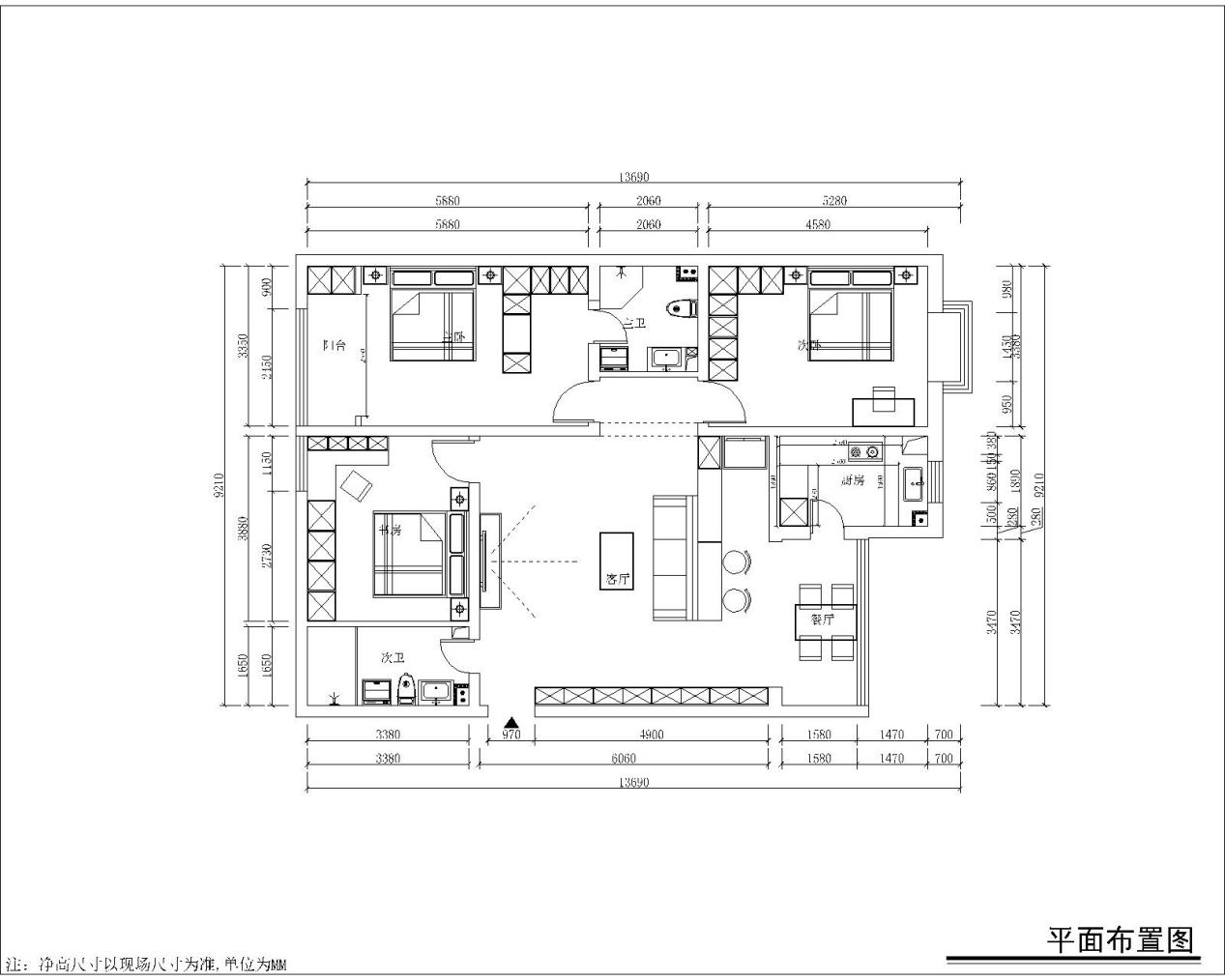
户型分析

上一篇:尹潞:中车国际 169㎡ 奶油风