案例风格
案例户型
案例面积
楼盘名称
所在城市
设计师
中式风格,那种经过沉淀的质感,设计汲取东方的美学精髓活用中式的古雅与诗韵为都市提供一种当代东方人居体验清风徐来,安适自在。
设计缘起:客户想要营造出安静苏雅,舒适的中式空间。
结构改造:合理的利用的原结构,客餐厅整体化吊顶塑造出空间的延展性,整体与大气,根据业主的实际需求对空间进行从新的划分与布局。
空间色调:大面积的浅色作为空间的主色调,体现出空间的温馨而含蓄,与中式挂画及饰品结合成就优雅,肃静的中式空间。
功能亮点:打破传统的电视背景设计,在不失功能的前提下,为增重空间的中式味道再加重一笔,凹凸设计鞋柜和书柜,在解决收纳问题的同时,提升的整个空间的气场。
客厅
灰白色的空间主色调,配以硬包造型,营造的素雅氛围,盆栽,山水画,元素的结合,形成了空间的肃静与安逸。


卧室
主卧舒适的环境,柔软的面料,它似山川流水,可奏雅歌。不同材质相融相生,富有灵气的墙画与中式木线条相互映衬,尽显清雅与平和。整体空间色彩与形式,无一不在提示着东方人文精神的传承与演变。以丰富的细节展现出低调,艺术的高尚生活品位。


书房
古色的书香氛围,少不了文房四宝的点缀,在古香古色中,更显中式的韵律之美。书柜设计集储物展示一体,甄选精美的装饰艺术品,东方印象使人回味无穷 。

餐厅
一日、三餐、四季,家的仪式感与烟火色,与家人的温暖挚爱,在百般滋味间得以修炼。现代元素的融入是整个家里变得时尚起来,与时俱进的中式风将时尚与古典完美融合起来,更具生命力。


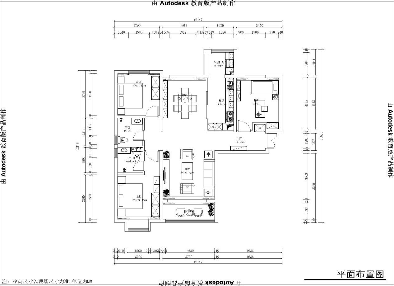
户型分析

上一篇:郑权:玉门河 99㎡ 现代简约
下一篇:尹潞:中车国际 169㎡ 奶油风