案例风格
案例户型
案例面积
楼盘名称
所在城市
设计师
中式风格是一种中式风格更多的利用了后现代手法,传统的结构形式通过重新设计组合的艺术风格。中国传统的室内设计融合了庄重与优雅双重气质。中式风格装修擅长以浓烈而深沉的色彩来装饰室内,墙面喜欢用深紫色或接近黑色的红,天花板也是深色木质吊顶配以淡雅的灯光。
客厅
· 胡桃色的空间主色调,软装是红色点缀,质感细腻的高级感,营造的庄重与优雅气质。



卧室



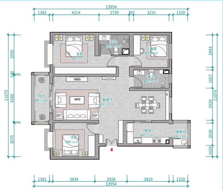
户型分析

上一篇:郑权:尊凯新座 90㎡ 奶油风
下一篇:郑权:玉门河 99㎡ 现代简约