快速报价

免费家装顾问

全程跟踪服务,避免装修陷阱
* 免费电话申请: 0351-3933777
家装品质护航
选择肖邦家居就是选择了一份美好的生活承诺
30000㎡实景展厅
68大实景样板展示
全城市环保材料以环保卫为根基
严格按照德系工艺标准
层层把关严苛验收

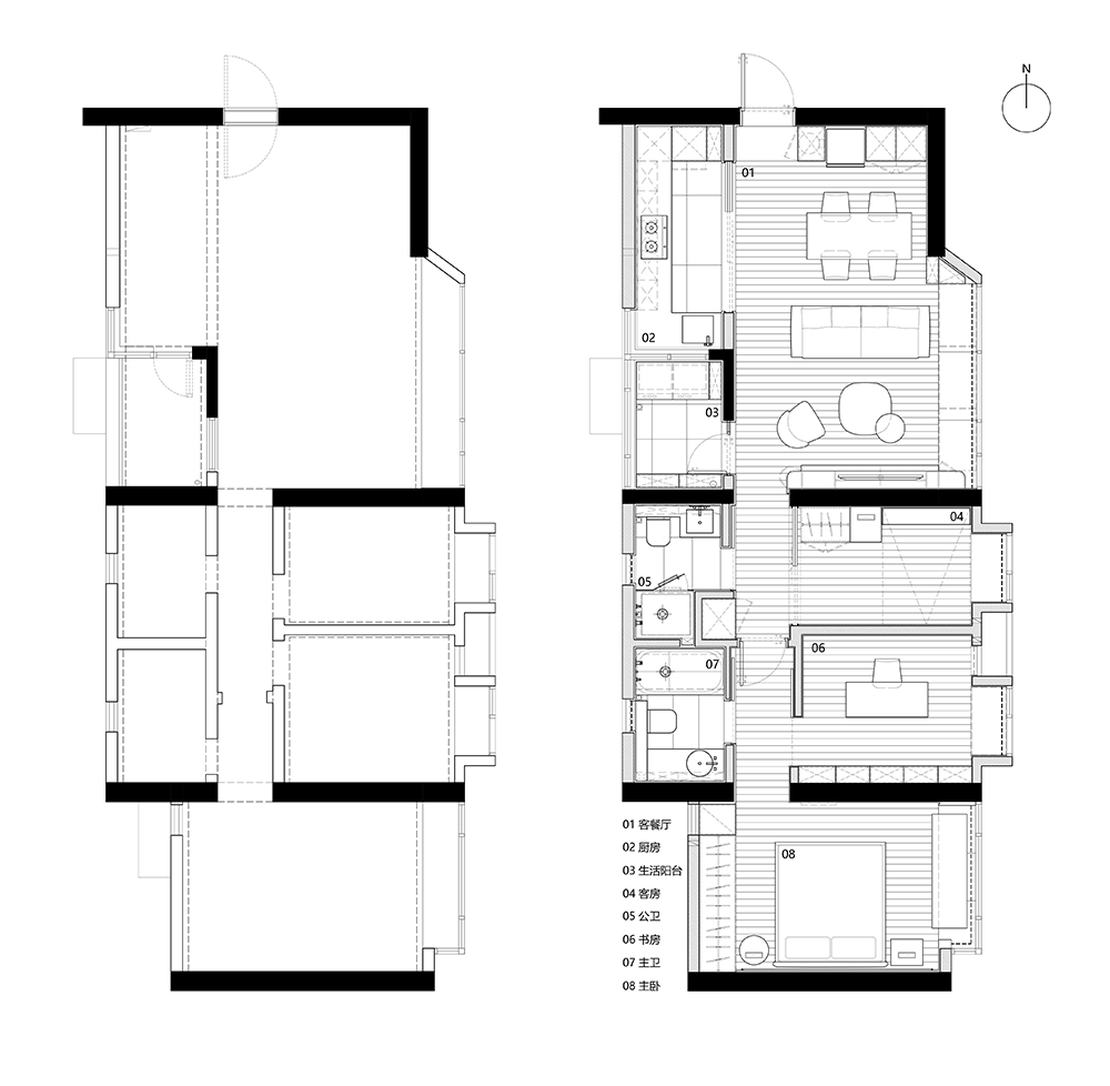
段雅荣:电子所小区 90㎡ 原木风

浏览数:83次 更新时间: 2023-06-23
  • 原木风

    案例风格

  •  
  • 三居室

    案例户型

  •  
  • 81-100平米

    案例面积

  •  
  • 电子所小区

    楼盘名称

  •  
  • 太原

    所在城市

  •  
  • 段雅荣

    设计师

在自由与克制的感性之中,寻找美好生活的具象表达,在纯白的空间底色之上,光线引导简约生活的构建法则,承载着居住者的生活时光。

餐厅精心挑选了带有圆弧造型的吊灯,跟空间硬装同样的圆弧是一种“对话”。
 

上一篇:段雅荣:海棠家园 82㎡ 现代简约

下一篇:段雅荣:半山中庭 118㎡ 现代轻奢

算一算 我家装修需要多少钱
算一算我家装修需要多少钱
免费报价电话
0351-3933777